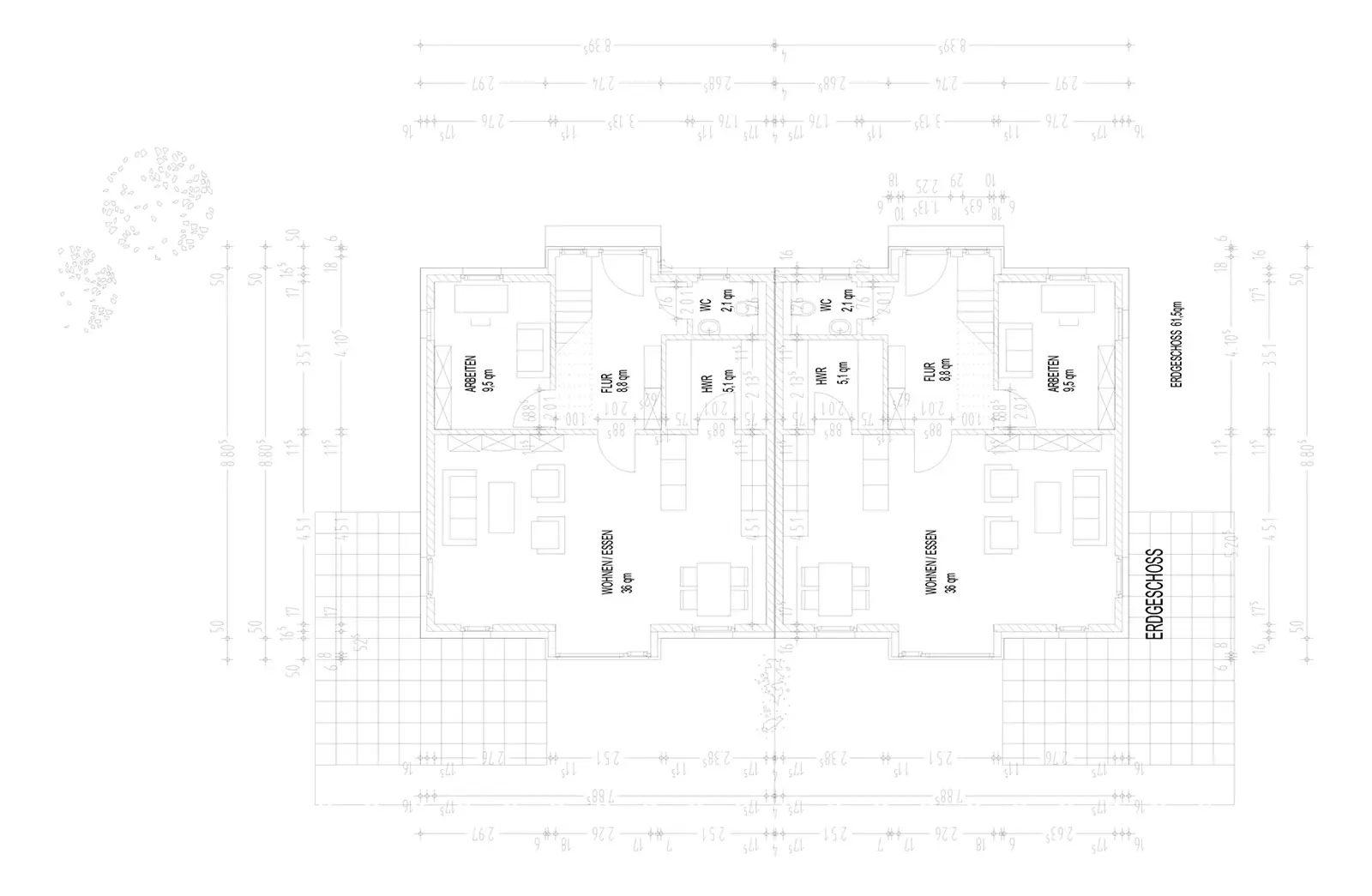
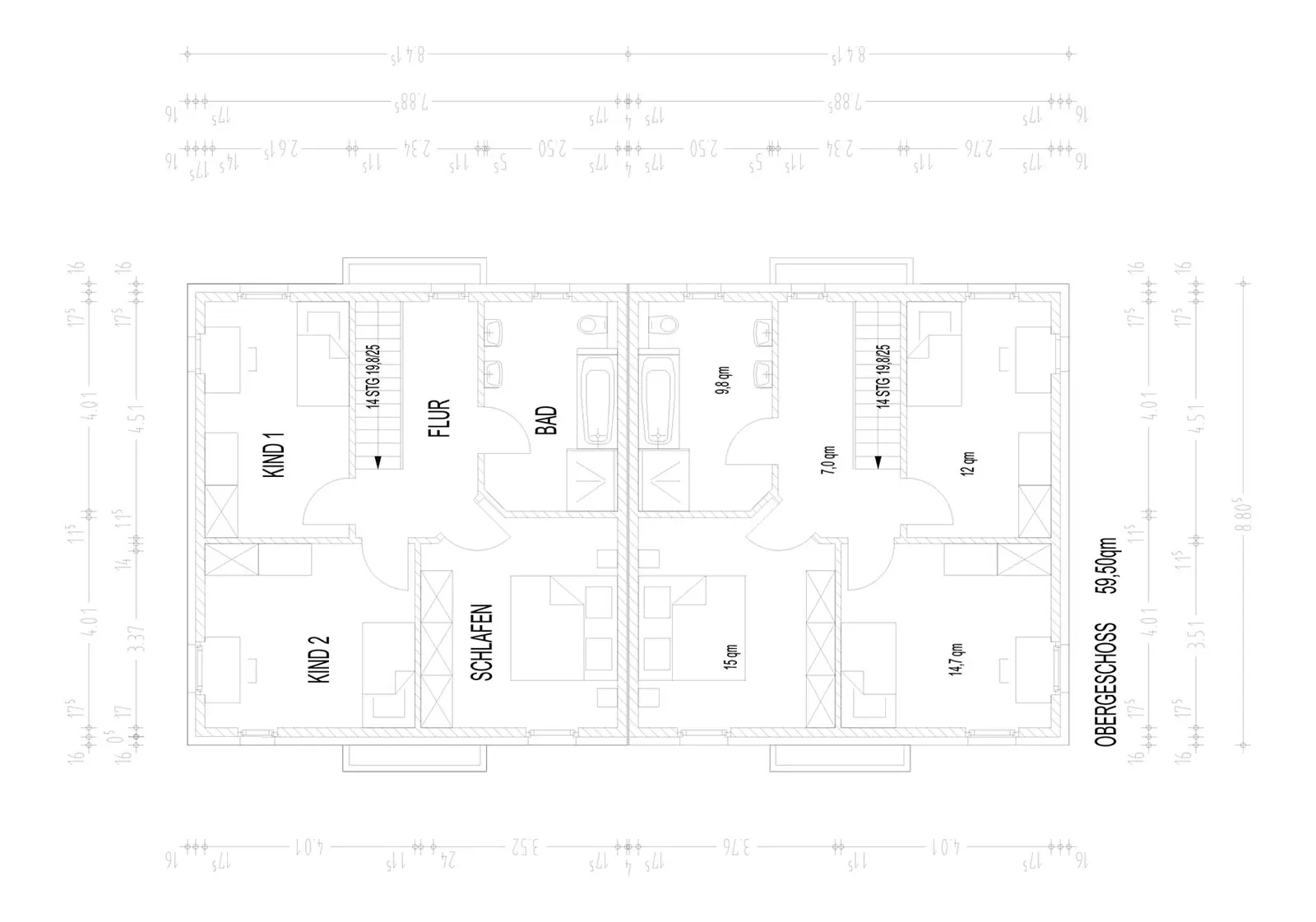
Doppelhaus mit jeweils 5 Zimmern
- Norderstedt
2
Wohneinheiten
5
Zimmer
130 m²
Wohnfläche
2017
Baujahr





