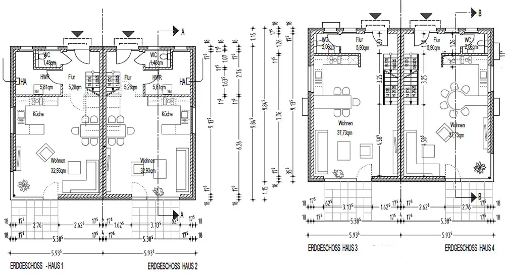
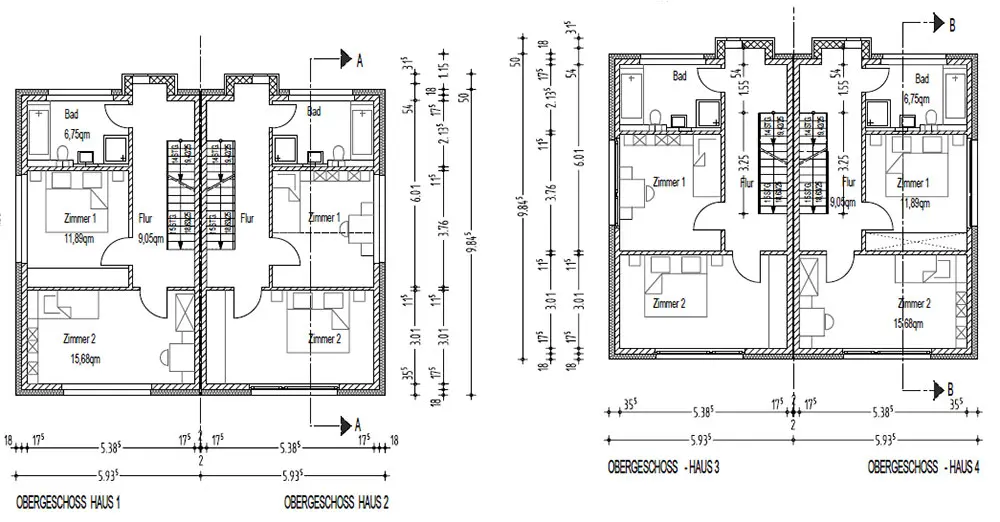
2 Doppelhäuser

4

Wohneinheiten

4

Zimmer

120 m²

Wohnfläche

2020

Baujahr

In Norderstedt ist ein Neubau mit vier Wohneinheiten und jeweils 125 m² geplant. Die Aufteilung kann dabei zwischen vier und fünf Zimmer variieren. Die Projektumsetzung startet 2020.